浜松市南区で外断熱工法の大規模増改築 ー LDKとホール完成
こちらのお客様は、亡くなったおじい様の代から30年来のお付き合いがあるお客様になります。お住まいは浜松市南区です。
今回は、母屋の築50年ほどになる部分を新しく増改築するご相談を頂き計画をさせて頂きました。
今回の計画は24年前の増改築部分を残し、50年前の左半分を解体して新しく建築します。今回は12、LDKと玄関ホール・廊下部分の完成の様子です。
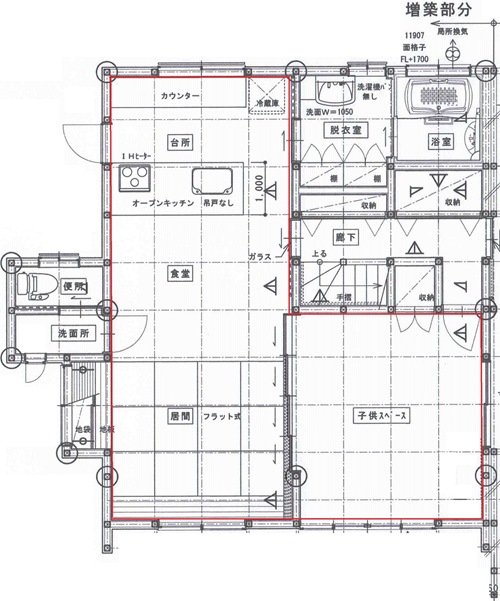
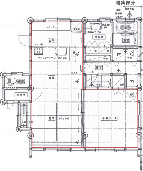
今回ご紹介する部分は1階のメインの部分になります。設計時は、お客様のご要望を元に、使い方などを細かく伺いながら間取りを計画しました。使い方が決まっている場所には作りつけの家具をご提案しています。なるべく多くの角度からの写真を使ってご紹介していますので、じっくりご覧下さい
LDKの工事が完了しました
赤い枠で囲った部分がLDKと洋室(子供スペース)です。家族が普段生活し、来客をもてなす空間ですので、使い方や家具・家電の配置計画など細かく打ち合せをして計画しています。
LDKの中央あたりから西を見ました。真ん中のドアはトイレへと続くドアです。便器の洗浄音などに配慮して、ドアは防音タイプのドア。壁には吸音素材を入れて防音にもしっかり対応しています。
作りつけテレビボードです。大きなテレビを置いても対応できるように、窓の下に広めのスペースを取っています。また、天板にはコードを通すための穴をあけ、穴の下にはコンセントやインターネット用のLAN配線も設置しました。
最近はテレビ周りの家電も増えましたし、テレビやゲームもインターネットに接続することが当たり前になってきました。でも、家電の配置計画やコンセントの計画を事前にしっかりと考えておけば「コンセントが足りない」という事態にならず、安心して使えますよね
リビングの中心になるタタミコーナーです。タタミコーナーには掘りコタツを設置しました。建材メーカーから出ている掘りコタツの既成品はとても高いので・・・既成品のコタツと部材を組み合わせて掘りコタツをつくりました![]()
壁は無垢の杉板を使用し、掘りコタツのまわりにも断熱材を入れています。断熱材はアルミによる輻射熱と、通気層を持つエアサイクルの高性能な断熱材を贅沢に使用しました。コンセントも掘りコタツの中に入れましたので、コードも邪魔にならずに使用できます。
これはダイニングにあるパソコン用カウンターです。高さ、巾、奥行きとも細かく寸法を決めさせていただき、作りつけにて作成しました。
パソコン用にコンセントやLAN配線を用意し、カウンターに開けたコード用の穴から取り出して使えますのでコードが邪魔になりません![]()
天板は固くてしっかりした「タモ材」。他の部分は柔らかな「杉材」を使い、自然塗料で着色と保護の塗装をして仕上げています。
これは、パソコン用カウンターの横の板です。記念になるように、大得工務店から何か加工したいものが無いかお客様に伺ったところ・・・お子様たちの希望で「星のカービィ」というキャラクターを彫り込むことになりました。
コードを通したりする穴にもなり、実用面でも結構役立ちます。
お客様にもとても喜んでいただけました
キッチンです。食器棚・家電収納・ごみ置き場等、ショールームに何度も一緒に行って頂き決めました。オープンタイプのキッチンがとても開放的です。
朝ごはんなどは、キッチンのカウンターで食べる計画で家事も効率的になりそうです。やさしいピンク色が素敵ですね~![]()
洋室(子供スペース)はこんな感じで仕上がっています
それでは、LDKと隣り合う洋室の様子を見てみます。
間仕切りとして採用したのは製作した4本の引込戸です。普段は開けておいて、急な来客があって仕切りたいときは簡単に閉めて仕切る、と言った使い方にピッタリの間仕切りです。中心にある桧の5寸柱が存在感バツグンです![]()
間仕切りの付近から見た室内です。正面の腰窓は、玄関ホールに明かりを入れる採光窓です。オーダーで製作したヒバ材の建具になります。
LDK横の洋室からLDKを見てみました。壁に注目して下さい・・・
柱が見えているのが分かりますか?
これは真壁工法と言って、構造体の柱が見えるように仕上げるやり方です。作業には気を遣いますし、手間もかかるやり方なのですが、キレイな柱がアクセントになるので仕上がりの質感がグッと高くなります。桧の柱はスベスベです![]()
また、真壁の柱は柱に合わせて部材寸法を決める必要があります。そのため、部材寸法が最初から決まってしまっている「既成品の建具」ではキレイに取り付け出来ないので、製作したオーダーの建具を取り付けています。
右側に見える扉もオーダー建具です。耐久性の高いヒバ材で製作しました。既存の部分と共通性のあるデザインにして一体感を出すようにしています![]()
左は階段下の物入れです。湿気の調整がしやすい無垢の杉板で壁を仕上げています。右は大得工務店が得意とするオーダーメイド無垢収納です。
こちらはお子様たちの遊び部屋になるので、おもちゃなどをたっぷり収納できるように大きめに製作しました。大き目のおもちゃやおもちゃ箱も入れられるように、奥行きもたっぷり60cm取っています。
玄関からLDKに入るまではこんな空間に仕上がりました
既設部分と共有する玄関から入り、廊下から増築部分に移動できる間取りになっています。増築部分の廊下には収納をたっぷり設計しています。
左の写真が耐震補強工事と取り合いの工事が終わった玄関ホールです。
壁も塗り直したのでピカピカになりました。ホール左部分が増改築工事部分になるのですが、左側に見えている梁は、解体した50年前の建物の建築時に組まれていたモノになります。木材自体はまだまだしっかりしていますので、補強をしたうえで構造体として残しています。
古くなった部分でも、まだ使える所は手を加えて残せるのが増改築のいいところですよね~![]()
右の写真が増築部分に入ったところから見た廊下の様子です。
既存部分との一体感を大事にしながら新設部分を設計しましたので、インテリアの感じも違和感なく仕上がりました。強いて言うと、柱の色が違いますね![]()
廊下に設置したクローゼットです。玄関からつながる廊下は
- 外で使ったり持ち出す事がある道具
- コートなどの上着
- 新聞などのストック
- 掃除用具
を収納するのに便利な空間です。こちらのエアサイクルの新築事例でも廊下の通路を物入れやクローゼットに計画しています。是非一緒にご覧下さいね![]()
左は奥行き30cmの棚板の可動式、右は奥行き60cmの板の可動式の棚とハンガーパイプの組み合わせです。用途に応じて使い分けて収納できます。棚板は杉の無垢板を使用し、壁にも杉の間伐材を利用した板を使用しました。
見た目と耐久性がいいのはもちろんですが、無垢材は湿気の吸排出性がとても高いので中に収納してある物がカビにくく、とても健康的なんですよ![]()
収納が無いとその分は部屋が広く感じますが、住んでみると部屋が片付かなくなりすぐに困ると思います。住まいを計画する時は、収納を多めに計画するのが失敗しないポイントです。「収納こんなにいらなかった」って言う人は今まで会ったことが無いです![]()
こだわりポイントが多く、1階のご紹介がすべて出来ないまま終わってしまいました・・・。次回は13、トイレとトイレ周りの完成の様子をご紹介します!
浜松市南区で外断熱工法の大規模増改築 鈴木様の施工事例はこちらです
- 浜松市南区で外断熱工法の大規模増改築 ー 1、解体前
- 浜松市南区で外断熱工法の大規模増改築 ー 2、解体
- 浜松市南区で外断熱工法の大規模増改築 ー 3、地鎮祭~地盤補強
- 浜松市南区で外断熱工法の大規模増改築 ー 4、基礎工事~足場
- 浜松市南区で外断熱工法の大規模増改築 ー 5、上棟
- 浜松市南区で外断熱工法の大規模増改築 ー 6、屋根・金物工事
- 浜松市南区で外断熱工法の大規模増改築 ー 7、取り合いと断熱工事
- 浜松市南区で外断熱工法の大規模増改築 ー 8、外装と外回りの工事
- 浜松市南区で外断熱工法の大規模増改築 ー 9、木工事と内装工事
- 浜松市南区で外断熱工法の大規模増改築 ー 10、内装仕上げと設備工事
- 浜松市南区で外断熱工法の大規模増改築 ー 11、既設部分の耐震補強工事
- 浜松市南区で外断熱工法の大規模増改築 ー 12、LDKとホール完成
- 浜松市南区で外断熱工法の大規模増改築 ー 13、トイレ完成
- 浜松市南区で外断熱工法の大規模増改築 ー 14、洗面とユニットバス完成
- 浜松市南区で外断熱工法の大規模増改築 ー 15、2階と小屋裏収納完成
- 浜松市南区で外断熱工法の大規模増改築 ー 16、工事完了後のお客様の声