浜松市南区で外断熱工法の大規模増改築 ー 2階と小屋裏収納
こちらのお客様は、亡くなったおじい様の代から30年来のお付き合いがあるお客様になります。お住まいは浜松市南区です。
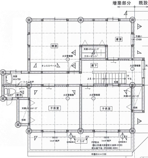
今回は、母屋の築50年ほどになる部分を新しく増改築するご相談を頂き計画をさせて頂きました。
今回の計画は24年前の増改築部分を残し、50年前の左半分を解体して新しく建築します。今回は15、2階と小屋裏収納の完成のご紹介です。
今回で、全4回でのご紹介となる大規模増改築の完成のご紹介が終わります。収納空間や使い勝手など、最後までこだわりポイント満載でご紹介していきますので、じっくりとご覧になって下さいね![]()
こだわった2階の部屋が完成しました
![]()
2階の工事の様子です。2階はご家族の居室になるため、家具の配置やコンセントの位置なども含めて入念に打ち合せました。
子供部屋です。
天井は開放的になるように勾配天井にしています。アクセントにしている天井の無垢板を張っている部分の上は小屋裏収納になっているんですよ![]()
室内側の小窓は階段ホールへの明かり対策にしたオーダー建具です。明かり採りはかなり気を使って計画しています・・・![]()
クローゼットの中です。収納棚は入れる物によっていろいろな組み合わせを作ってご提案しています。壁は1階と同じく無垢の杉材を張りました。
無垢の板は見た目もいいし、傷も目立ちにくいし、においもいいし、湿気を調整してくれるから収納する服にもいいし ・・・いいことづくしです![]()
しかもこの杉板は国産の杉の間伐材ですから、豊かで安心な国内の森林資源を活用しつつ林業にも貢献できるという逸品です。オーダーメイド無垢収納の背板に使っているものと同じ素材です。
2階北東のの書斎コーナーです。
作りつけの作業カウンターと収納棚が完成しました。壁を作る前に埋め込んで作成していますので、見た目も非常にスッキリしています。カウンター面の素材には色々作業しても傷が付きにくく耐久性の高い「タモ材」を使っています。
更にパソコンなどのコードをスッキリできるように、カウンターにはコードを通す穴を空けました。これで、作業のジャマになるコードはカウンターの下です。
これ何か分かりますか?
実はインターネット用の「LAN配線」のコンセントなんです。インターネットや電話回線など最近は機器類の配線やコード類がとても多くなってきましたよね。
「よくわかんないし、後でなんとでも配線できるからいいんじゃない」
と、建物の計画時に配線計画の事を良く考えないで進めてしまうとインターネット用の機器類の後ろで大量のコードがぐちゃぐちゃしてしまいます。リビングなどでこんな風になっていたら目に付きやすいですよね・・・![]()
そこで作った、インターネット関係の機器類を一カ所にまとめて置くスペースがこちらです。ここに機器類を置いて、更に各部屋に配線する親元にすることで効率的にコード類をまとめる事ができます。
また、専用スペースなので机の上などにぐちゃぐちゃした配線が見えることもありません。
これから住まいの工事をされる方は、こういった部分もよく考えておく方が後々「思っていたより使いにくかった」などの後悔も少なくて済むと思いますよ![]()
明かり採りに配慮した階段ホールが完成しました
2階の階段ホールです。
今回は「中廊下型」と言って間取り的に南北に部屋がある間取りを採用しています。中廊下型は、光を取り入れにくいという弱点があるのですが、ホールに大き目の窓を取り入れた事で暗さを感じないようにする事が出来ました。
東側の窓ですので、特に朝は眩しいくらいの光が入ってきます。更にこの階段ホールの光は、2階を明るくするだけではなくて1階の廊下にも光を落とします。
階段は縦の部分の板(蹴込み板と言います)がない「ストリップ階段」という階段を採用しています。これで階段部分に落ちてくる光も下まで届ける事ができるんですよ![]()
壁に埋め込むタイプなので、こちらのオーダーメイド無垢収納とは少し作り方が違いますが、壁に固定して一体化する可動式の収納と言う点は同じです。
こちらはお客様がたくさんお持ちである、アルバムを収納する空間として製作しました。家族の共用空間にある本棚ですから、みんなで使える本の収納には最適な場所ですよね![]()
屋根の中のデッドスペースを利用した小屋裏収納完成
小屋裏収納が完成しました。
収納空間としての利用になりますので、床は合板仕上げ、壁と天井はプラスターボードのみで仕上げとしました。これなら傷が付いても気にせずに使えますよね
小屋裏収納は屋根の裏にあるデッドスペースを活かした収納空間です。
2階建ての建物のままで、収納空間がグンと増やすことができるとても合理的な収納空間なんです。
屋根で断熱をしている「外断熱工法」なら、小屋裏収納の中も部屋と同じような温度の空間にできるので、とても相性がいいんです。費用面からもとてもオススメな空間です。
小屋裏収納への階段周りの化粧壁は無垢の赤松で製作したものです。大塚昌弘が手作業で製作したオリジナルの手すりでとてもしっかりしています。
![]()
小屋裏収納の階段から2階の階段ホールを見てみました。
たまに、小屋裏収納にハシゴで上るプランもありますが、日常的に使いやすいのはやはり固定階段です。普通の階段と同じように上り下り出来て、しっかりと手すりも付いていれば荷物を持っていても安心して使えますよね![]()
これで内装の完成の様子のご紹介が終わりました。ご紹介に予想以上に時間がかかってしまい反省です・・・![]()
次回は最終回、16、工事完了後のお客様の声をご紹介します。
浜松市南区で外断熱工法の大規模増改築 鈴木様の施工事例はこちらです
- 浜松市南区で外断熱工法の大規模増改築 ー 1、解体前
- 浜松市南区で外断熱工法の大規模増改築 ー 2、解体
- 浜松市南区で外断熱工法の大規模増改築 ー 3、地鎮祭~地盤補強
- 浜松市南区で外断熱工法の大規模増改築 ー 4、基礎工事~足場
- 浜松市南区で外断熱工法の大規模増改築 ー 5、上棟
- 浜松市南区で外断熱工法の大規模増改築 ー 6、屋根・金物工事
- 浜松市南区で外断熱工法の大規模増改築 ー 7、取り合いと断熱工事
- 浜松市南区で外断熱工法の大規模増改築 ー 8、外装と外回りの工事
- 浜松市南区で外断熱工法の大規模増改築 ー 9、木工事と内装工事
- 浜松市南区で外断熱工法の大規模増改築 ー 10、内装仕上げと設備工事
- 浜松市南区で外断熱工法の大規模増改築 ー 11、既設部分の耐震補強工事
- 浜松市南区で外断熱工法の大規模増改築 ー 12、LDKとホール完成
- 浜松市南区で外断熱工法の大規模増改築 ー 13、トイレ完成
- 浜松市南区で外断熱工法の大規模増改築 ー 14、洗面とユニットバス完成
- 浜松市南区で外断熱工法の大規模増改築 ー 15、2階と小屋裏収納完成
- 浜松市南区で外断熱工法の大規模増改築 ー 16、工事完了後のお客様の声










