無料相談

お問い合わせ

00-0000-0000

受付時間:月〜金 10:00〜18:00

浜松市南区で補助金をもらう築40年目の耐震補強工事3

2011.09.13

047-1こちらのお客様は40年ほど前に大得工務店で新築工事をさせていただいたお客様になります。今回、最近続く地震に対する備えとして、住まいの安全を確保するための耐震補強工事を決断されました。

静岡県は、東海・東南海地震が30年以内に87%以上の確率でくると予測される、国内でも特に備えが必要なエリアです。そのため、静岡県や浜松市では既存住宅の耐震補強工事に補助金を出すなど、地震対策に力を入れています。

今回の事例でも浜松市と静岡県の補助金を受けて耐震補強工事をしていますから、耐震補強工事を検討されている方は必見ですよびっくり 今回は第3回目、広縁の耐震補強工事をご紹介します。

静岡県や浜松市の補助金を受けるためには、浜松市の木造住宅耐震補強助成事業者である必要があります。大得工務店は浜松市の木造住宅耐震補強助成事業者として浜松市から認可を受けています。

大得工務店は浜松市木造住宅耐震補強助成事業者です

最初に家全体の耐震補強工事の計画をします

今回、浜松市と静岡県の補助金を受ける耐震補強工事の現場です。

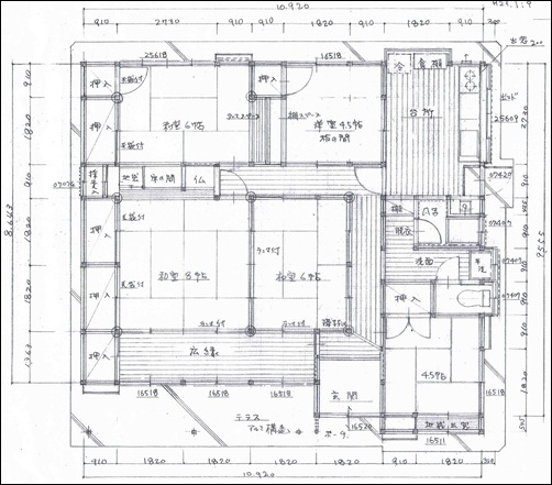
工事をする住宅はこのような間取りの築40年ほどのお住まいです。耐震補強工事は、家全体の強さを高めるために強さに偏りが無いように事前にしっかりとした計算をします。お客様が住みながらの工事となったため、部屋ごとに移動しながら工事を進めていきます今回は南西の広縁の耐震補強工事をご紹介します。

heimen_thumb

なるべく既存の部分の解体などを少なくした補強工事とするため、家全体でのバランスを見て補強計画を建てました。

地震が起きた時、家の中でも特に力がかかりやすいのが家の隅部分です。家の隅の壁を補強してあげることで家全体の強さが上がり、地震力が弱い部分に集中しにくくなります。

耐震補強工事前の広縁の押入はこんな感じでした

047-1048-1

元々付いていた扉は工事完成後も使いますので一度取り外します。押入は中段(腰の高さくらいの棚板)が入っていて、壁はトタンで仕上がっていました。

耐震補強工事スタートです

065-1081-1

壁などの補強をするため、まずは押入の壁を解体します。40年くらい前には断熱材など使わない「荒壁」と呼ばれる土壁の家が一般的で、こちらのお住まいも「荒壁」の造りになっています。

077-1

柱などの構造体が見えたところで、それぞれの構造体をつなぎ止めるための金物を取り付けていきます。金物にはそれぞれ適切な使用場所と強さが決められていますから、場所や使い方を間違えないようにしなければいけません

078-1079-1

柱と梁に取り付けた金物です。浜松市の補助金を受ける場合は、計画にある金物の取付忘れが、一つでもあると補助金をもらえません。何度も計画図面を確認しながら取付をし、作業風景を写真にも納めていきます。

耐震補強工事完成後に壁を元通りに仕上げます

094-1103-1

壁の平らを見ながら壁下地を入れていきます。下地の木を加工したりしながら丁寧に入れます。これが構造用合板を釘で留めるための下地ですねびっくり

その下地をベースにして構造用合板を張っていきます。構造用合板は他の補強個所と同じように決められた釘を、指定の間隔でしっかりと打っていきます。これで構造体の補強と壁の補強が終わりました。

108-1109-1

後は新しい床と壁を作っていきます。床は床板の下地となる「根太」を入れてから杉の無垢板を張りました。杉の板は柔らかいので傷が付きやすいですが、調湿性に優れた素材なので押入の中のカビの防止などに向いている素材です。

112-1047-1

新しい壁仕上げとして化粧ベニヤを張り、工事前と同じような棚板を設置しました。使い勝手は工事前と同じで、見えない壁の中はバッチリ補強しました!

広縁の様に窓の面積が多い家の南面は構造的な弱点になりやすいですが、地震の時に力が集中しやすい家の角の部分で重点的に強くしてあげることで、家全体の強さのバランスが良くなりました。

次回は最終回4回目、北側和室の耐震補強工事の様子をご紹介します。

こちらのお客様の耐震補強工事の様子はこちらからご覧いただけます

この記事は役に立ちましたか?
もし参考になりましたら、下記のボタンで教えてください。

関連記事

目次