無料相談

お問い合わせ

00-0000-0000

受付時間:月〜金 10:00〜18:00

浜松市南区で補助金をもらう築40年目の耐震補強工事1

2011.08.12

086こちらのお客様は40年ほど前に大得工務店で新築工事をさせていただいたお客様になります。今回、最近続く地震に対する備えとして、住まいの安全を確保するための耐震補強工事を決断されました。

静岡県は東海・東南海地震が30年以内に87%以上の確率でくると予測される、国内でも備えが必要なエリアです。そのため、静岡県や浜松市では既存住宅の耐震補強工事に補助金を出すなど、地震対策に力を入れています。

今回の事例でも静岡県と浜松市の補助金を受けて耐震補強工事をしていますから、震補強工事を検討されている方は必見ですよびっくり 今回は第1回目、東南和室の耐震補強工事をご紹介します。

静岡県や浜松市の補助金を受けるためには、浜松市の木造住宅耐震補強助成事業者である必要があります。大得工務店は浜松市の木造住宅耐震補強助成事業者として浜松市から認可を受けています。

大得工務店は浜松市木造住宅耐震補強助成事業者です

最初に家全体の耐震補強工事の計画をします

今回、浜松市と静岡県の補助金を受ける耐震補強工事の現場です。

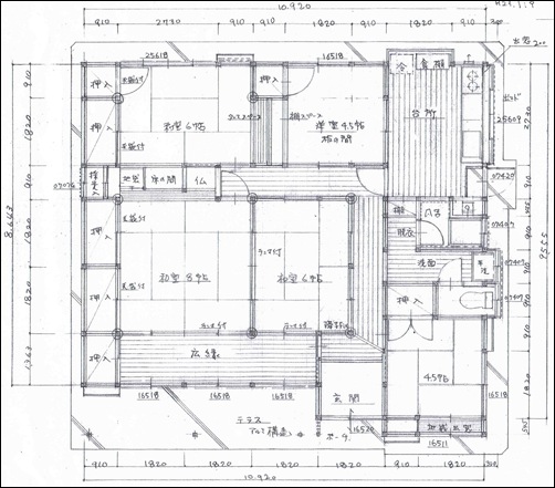
工事をする住宅はこのような間取りの築40年ほどのお住まいです。耐震補強工事は、家全体の強さを高めるために強さに偏りが無いように事前にしっかりとした計算をします。お客様が住みながらの工事となったため、部屋ごとに移動しながら工事を進めていきます。今回は南東の和室の補強工事をご紹介します。

heimen_thumb - コピー

なるべく既存の部分の解体などを少なくした補強工事とするため、家全体でのバランスを見て補強計画を建てました。

補助金を受けるために、使用する部材や金物の写真も撮ります

023

補強工事に使う金物はすべて設計の基準で決められたものを使用します。ビスの規格や釘の長さ、金物の強度などはすべて設計の通りにする必要があります。

・・・というのも、木造在来工法の建物は家全体の強度のバランスが非常に大事なので、耐震強度等のバランスを設計通りにしていかないと、家が地震に強くなるどころか弱くなってしまうこともあるからです

057043

下地などに使う木材や合板もしっかり写真で残します。補助金を受ける場合はこのような写真も市に提出します。

南東4.5帖和室の耐震補強工事前の様子です

027031

工事前の部屋の様子です。部屋の壁だけでなく、比較的解体と復旧のしやすい押入の中も利用して補強工事をします。

解体するところから工事を開始します

045

押入の中を解体しました。構造体が良く見えます投げキス
この状態にしてから筋交いを入れたり、耐震金物の設置をします。

解体した押入の中に筋交いや金物の補強をします

068088

構造体の横揺れを防止する「筋交い」を入れた後、構造用合板を張っていきます。筋交いや構造用合板に使う金物も設計通りに施工します。

構造用合板を留める釘ももちろん指定の材料を使用します。釘1本1本も、決められた間隔で確実に固定するようにしているんですよすぐ戻ります

060071

こちらは筋交い金物の一部です。構造体同士のつながりを強くすると同時に、指定された金物でガッチリ固定していきます。

押入横の壁部分も補強工事をします

110116

こちらの壁には構造用合板を張る計画です。まず天井の板を取りました。その後、既存の柱と梁にも金物を入れます。一つ一つは小さな金物ですが、これらをバランスよく設置する事が大事です。

117121

構造用合板を張るための下地を作ってから構造用合板を張ります。天井の下地は合板施工の邪魔になるので、部分的に撤去しています。構造用合板は、梁だけでなく土台にもしっかり固定して、その上で床下地の施工です。

127

天井も床と同様に構造用合板を入れてから下地の復旧をします。耐震補強工事自体はこれで完了です。残るは仕上げの工事だけですね・・・ずる賢い

耐震補強工事が終わったら仕上げ作業をして元通りにします

097108

床の下地と天井の下地を張りました。壁は化粧ベニヤで仕上げています。床は調湿効果の高い杉の無垢板を張りました。

106

新しい棚板を設置しました。使いなれた元通りの位置に新しい棚板を設置して・・・後は、外してあった扉を戻せば完成です。

壁の工事個所も仕上げ作業をします

001

押入の隣の壁の仕上げも完成しました。工事部分だけの仕上げにしたので既存部分と少し色が違いますが、家が強くなって気分一新です。

003-2004

同様に部屋の西側壁の耐震補強工事も済ませ、畳は入れ替えました。これで地震にも強くて安心できる部屋になりました。

次回は2回目、北東にある台所の耐震補強工事の様子をご紹介します。

こちらのお客様の耐震補強工事の様子はこちらからご覧いただけます

この記事は役に立ちましたか?
もし参考になりましたら、下記のボタンで教えてください。

関連記事

目次